| Location: | The Hermitage, Nashville, Tennessee, United States |
|---|---|
| Occupation Dates: | 1819-early 20th century. |
| Excavator(s): | Larry McKee, Brian Thomas, and Hermitage Interns |
| Dates excavated: | 1993 |
Overview
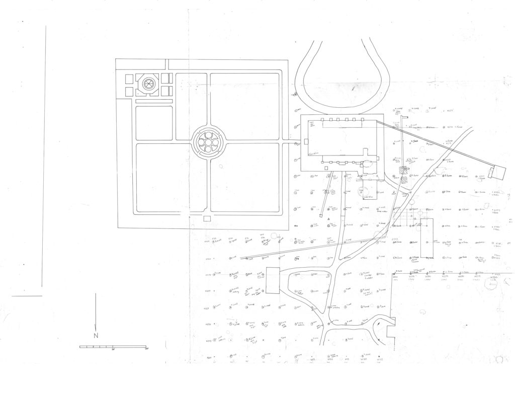
The Hermitage’s “Mansion Back Yard” was surveyed under direction of Larry McKee and Brian Thomas beginning in May 1993. It covers approximately three acres adjacent to, and north and west of The Hermitage mansion and is bounded by the formal gardens on the east (Figure 1). The investigation focused on areas surrounding standing structures in the yard such as the mansion, kitchen, smokehouse, and Alfred’s cabin. Results of the survey revealed information about non-extant buildings as well, including the Triplex, “yard cabin” and the ice house. Since this area was used intensively during the day-to-day operation of the plantation during Jackson’s tenure, the results of the survey informed future archaeological as well as restoration work in the area. More extensive excavations at the Triplex and the ice house were also undertaken in 1993, though not part of the “mansion back yard” project.
Documentary Evidence
In addition to the extant mansion and its attached kitchen located in the area referred to as the mansion back yard, a smokehouse still stands, located approximately ten feet north of

Figure 2. Alfred’s Cabin view from northwest (courtesy of Library of Congress). Mansion backyard survey area includes photograph foreground.
the kitchen as well as Alfred’s cabin (only remaining intact slave cabin on property; built in 1840s)
located approximately forty feet north-northeast of the northwest corner of the garden (Figure 2). Documentary evidence supports the existence of structures in addition to these located in the back yard. An 1837 letter to Jackson, then residing at the White House, referred to completion of the Hermitage’s ice house (McKee et al. 1994:7). An early twentieth-century map shows a building north of the smokehouse labeled “ice” (Figure 3). Existing evidence of the building was visible on the ground in 1993 as an oval depression measuring fifteen feet across (McKee et al. 1994:8) which was further investigated during the survey.

Figure 3. Detail from plan drawing of the Hermitage c. 1930 with ice house location circled in red (Mckee et al. 1994:9).
Excavation History, Procedure, and Methods
The Mansion Backyard Survey conducted in 1993 consisted of 162 shovel test pits excavated by student interns, local volunteers, and Earthwatch program participants under the direction of McKee and Thomas. Pits were placed at 25-foot intervals and measured one foot on a side. Dirt was dry screened through one-quarter inch mesh. The pits were placed on a grid established by McKee known as the “M Grid” that encompassed the southern portion of the plantation near the mansion. Test pit locations were recorded using their northing and easting coordinates. A shovel test pit record was completed for each pit wherein excavators recorded stratigraphy of the pit as well as notes on artifacts recovered. All artifacts from one pit were grouped together as one context regardless of stratigraphy.
Summary of Research and Analysis

Figure 4. Kriged artifact distribution map of all ceramics recovered in STPs at the Mansion Backyard site.
The shovel test pit methodology proved useful in locating both structural remains as well as related artifact deposits based on artifact densities. As expected, artifact densities are higher around domestic structures including the Triplex , Yard Cabin, and Alfred’s Cabin (Figure 4). In addition, a high concentration of ceramics is seen in the area west of the mansion where the known 1820s mansion kitchen was located. Artifact density was particularly high in a large area surrounding Alfred’s Cabin, perhaps the result of longer occupation at that site (Alfred’s cabin is an extant structure; additional shovel test pits were excavated at close intervals around Alfred’s Cabin in 1994 but those data are not in DAACS). Note that the areas immediately north of the mansion are relatively clear of ceramics, possibly indicating they were “maintained” or cleared spaces in close proximity to the main house.
The test pit survey also uncovered evidence of extensive fill (two feet in some areas) northwest of the mansion that dated to the early decades of the twentieth century, indicative of a campaign to level what was once a gentle slope downward from the mansion toward a stream located 250 yards from the mansion (McKee et al. 1994:4).
Architecture was also revealed during the test pit survey. The domestic structure known as the “Yard Cabin” is located just outside the northwest corner of the gardens in the mansion back yard and was excavated in 1988. A test pit during the survey revealed a previously unknown feature that was part of the Yard Cabin: a rectangular laid limestone feature later designated Feature 768 (see Yard Cabin Background). In addition to this, the survey also substantiated the location of the ice house located directly north of the smokehouse near the mansion. This was evidenced by a related fill layer in a test pit at the location.
See Chronology for summary of DAACS analysis of the Mansion Backyard project.
Leslie Cooper
Digital Archaeological Archive of Comparative Slavery
April 2017
- The DAACS Project ID for the Mansion Backyard is “1408”. All Mansion Backyard contexts and artifact IDs begin with that prefix.
- Shovel test pits comprise the entire excavation type for the Mansion Backyard project.
- Context IDs for the project are the coordinates, northings and eastings, for that shovel test pit; for example, “N475E50.”
- Measurements are in feet and tenths of feet.
- All shovel test pits were 1 ft-x-1 ft square. A plywood template was used to ensure consistent size.
- All shovel test pits were 100% dry screened through ¼ inch hardware mesh.
- All artifacts recovered from one pit were grouped together as one context regardless of stratigraphy.
The Mansion Back Yard project consisted entirely of shovel test pits. Although some features were encountered during excavation of test pits, they were not designated features or assigned feature numbers in the field. As a result, no features are recorded in DAACS for this project.
Intra-site Chronologies

Figure 1. Plot of contexts (individual shovel test pits) along CA dimensions 1 (Inertia 41%) and 2 (Inertia 28%). Time runs left to right. Assemblage labels are shovel test pit coordinates.
DAACS has developed a uniform set of methods to infer intra-site chronologies for all of the sites included in the archive. These methods, which include frequency-seriation and correspondence analysis, were developed by DAACS (see Neiman, Galle, and Wheeler 2003 for technical details). The use of common methods for all sites in the archive is designed to increase comparability among temporal phases at different sites. The methods and the phase assignments they produced are summarized below. Archive users may also use the Mean Ceramic Date queries provided on the Query the Database section of this website to calculate MCDs for individual contexts or features.
For some sites, the original excavators developed intra-site chronologies and, where these exist, they are described on the Background page for the site. In the case of the Mansion Back Yard project, the principal investigators did not develop a chronology for the site. The DAACS chronology presented here is the only current chronology for the site.
DAACS Seriation Method
As with other sites in the Archive, the seriation chronology for the Hermitage’s Mansion Back Yard project was derived from ceramic assemblages of individual contexts not assigned to stratigraphic groups. No stratigraphic groups were assigned for this site at the time of writing. Ceramic data comes from 172 excavated shovel test pits.
To reduce the noise introduced by sampling error, only ceramic assemblages with more than five sherds and ware types with more than five observations were included. The seriation chronology presented here is the result of a correspondence analysis (CA) of ware-type frequencies from contexts that meet these requirements (Figures 1 and 2).
The CA results produced a strong correlation between Dimension 1 scores and MCDs (Figure 3), suggesting that Dimension 1 represents time from right (early) to left (late). Based on the dips in ceramic counts observed in a histogram of Dimension 1 scores, where the vertical axis measures ceramic assemblage size, we divided the Mansion Back Yard project into three occupational phases (Figure 4).
Site Phases
DAACS Phases are groups of assemblages that have similar correspondence-analysis scores, similar MCDs, or both, and are therefore inferred to be broadly contemporary. Phases have a P-prefix that precedes the phase number (e.g. P01 equals Phase 1). Based on the correspondence analysis DAACS divided the Mansion Back Yard occupation into three phases (Figures 3 and 5).

Figure 3. Histogram of ceramics from they survey plotted along CA Dimension 1. The vertical lines indicate DAACS phase divisions.
The MCDs for the three phases are given in the table below. Individual phase MCDs and BLUE MCDs, which give less influence to ceramic types with long manufacturing spans, indicate that the Mansion Back Yard project area contains refuse representing fairly continuous occupation throughout the first three quarters of the nineteenth century. The table also provides three TPQ estimates. The first TPQ estimate is the usual one – the maximum beginning manufacturing date among all the ware-types in the assemblage.
Two other TPQ measures included in the table below are less sensitive to excavation errors and taphonomic processes that might introduce a small amount of anomalously late material into an assemblage. They are TPQp90 and TPQp95. The TPQp95 of 1840 for all three phases provides a robust estimate of the site’s TPQ based on the 95th percentile of the beginning manufacturing dates for all the artifacts comprising it. The TPQp90 of 1840 for all three phases provides a more robust estimate of the site’s TPQ based on the 90th percentile of the beginning manufacturing dates for all the artifacts comprising it.
Mansion Back Yard Dates and TPQs
| Contexts | MCD | BlueMCD | TPQ | TPQ90 | TPQ95 | Total Count |
|---|---|---|---|---|---|---|
| Phase 1 | 1828 | 1813 | 1820 | 1820 | 1820 | 28 |
| Phase 2 | 1887 | 1868 | 1840 | 1830 | 1840 | 77 |
| Phase 3 | 1909 | 1910 | 1840 | 1840 | 1840 | 54 |
Incorporating data from the DAACS database, we perform the correspondence analysis through the R programming language (R Core Team 2014). The CA code was written by Fraser D. Neiman. The following packages generate the data tables, CA, and plots within this code: RPostgreSQL (Conway et al 2013), plyr (Wickham 2011), reshape2 (Wickham 2007), seriation (Hahsler et al. 2014), anacor (de Leeuw and Mair 2009), and ggplot2 (Wickham 2009).
All of the R code used in this analysis was written within the domain of the R Core Team at the R Foundation for Statistical Computing, Vienna, Austria (2014). The correspondence analysis for the Hermitage’s Mansion Back Yard project was conducted by Leslie Cooper.
The Harris Matrix summarizes stratigraphic relationships among excavated contexts and groups of contexts that DAACS staff has identified as part of the same stratigraphic group. Stratigraphic groups and contexts are represented as boxes, while lines connecting them represent temporal relationships implied by the site’s stratification, as recorded by the site’s excavators (Harris 1979).
There is no Harris Matrix for the Mansion Backyard site, since the archaeological survey consisted entirely of shovel-test-pits.
Harris, Edward C.
1979 Principles of Archaeological Stratigraphy. Academic Press, London, England.
McKee, Larry , Brian W. Thomas , and Jennifer Bartlett
1994 Summary Report on the 1993 Archaeological Investigation of the Area Behind The Hermitage Mansion The Ladies' Hermitage Association, Hermitage, Tennessee.
McKee, Larry
1995 The Earth Is Their Witness, The Sciences. March/April.
Russell, Aaron E.
1997 Material Culture and African-American Spirituality at the Hermitage Historical Archaeology, Vol. 31, No. 2 (1997), pp. 63-80.














